סביוני קריית יובל

שכונת "קריית יובל"

סביוני קריית יובל להמחשה בלבד
הכר את השכונה שלך 20259

סביוני קריית יובל

ירושלים • בוליביה 14 קרית יובל, ירושלים

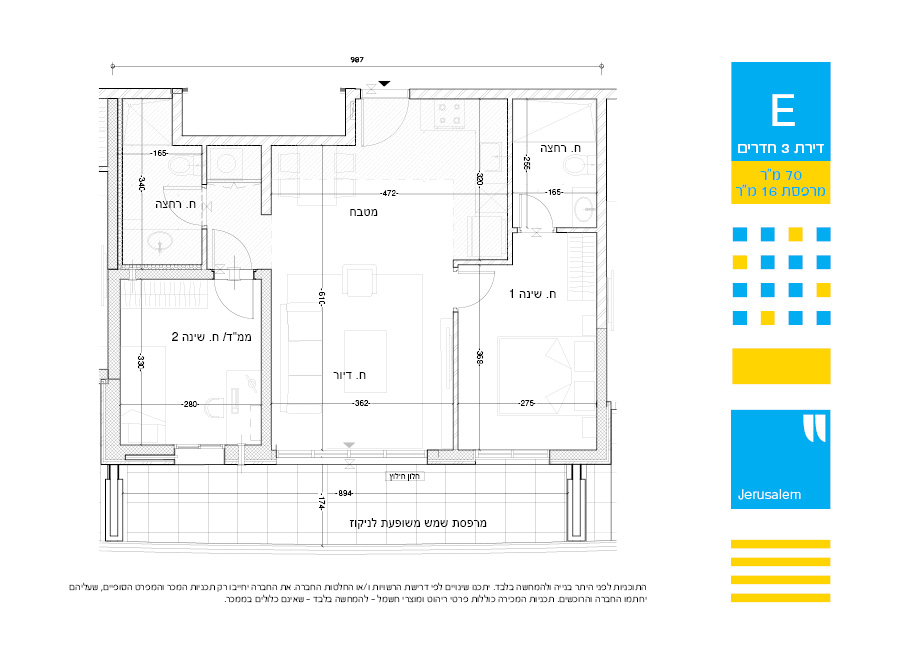
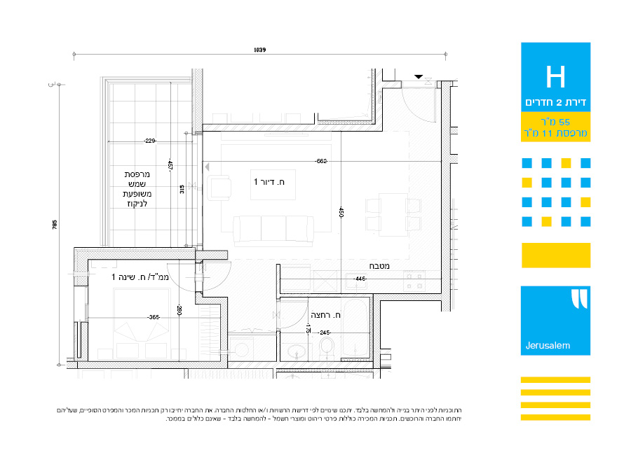
תמהיל הפרוייקט: 3 בניינים, 70 יח"ד
אופי הקהילה: מעורב
מיקום מנצח עם נוף פתוח החושף את יופיה של ירושלים יוקמו 3 בניינים עם מגוון רחב של דירות מרווחות בתכנון ייחודי. סביוני קריית יובל הוא חלק מתוכנית פינוי בינוי שתהפוך את השכונה לחדשה ומודרנית.
  • בנייה איכותית וקפדנית
  • נגישות מושלמת לצירים המרכזיים ולקניון מלחה
  • סמוך לקו הסגול של הרכבת הקלה
  • שדרות מסחר, שבילי אופניים, גינות ציבוריות​
לבחירתכם: דירות 2, 3, 4, 5 חדרים, דירות גן ופנטהאוזים. החלה הבנייה​
הודעה אחרונה מהיזם:
 

תמהיל הדירות בפרויקט

2 חדפנטהאוז 4 חדרים2.5 חד'
לתכנון תקציב

לשיחה עם משווק הפרויקט

מלאו פרטים ומשווק הפרויקט יחזור אליכם בהקדם
  • -
  • מאשר קבלת עדכונים מהמערכת
  • או חייגו -
הורד תכניות

שלום, ברוך הבא לקהילת שכונת קריית יובל

בקהילת השכונה תוכלו לצפות בחברים שהתעניינו בשכונת קריית יובל, ליצור איתם קשר דרך דף הפייסבוק שלהם ולהחליף מידע.

על מנת לצפות בשכנים שלך
עליך להתחבר לפייסבוק

קהילת "קריית יובל"

הקהילה שלי, מערכת, info@my-community.co.il

קריית היובל היא שכונה בת כ-22,000 נפש בדרום מערב ירושלים. השכונה נוסדה בשנת 1954, שלוש שנים לאחר יובל הקרן הקיימת לישראל שחל בשנת 1951, ובו התכוונו להתחיל את בניין השכונה, ומכאן שמה.
קריית היובל שוכנת בדרום־מערב העיר ופרושה על מרומי רכס שכיוונו צפון-דרום וגובהו כ-810 מ' מעל פני הים, והיא נחשבת לאחת השכונות הגבוהות בירושלים. רכס קריית היובל יושב בין הר הרצל ושכונת עין כרם ממערבו. בדרום משתפל הרכס לעבר נחל רפאים וממזרח גובל בנחל מנחת. בשל המיקום הגאוגרפי שלה צופה השכונה לנוף מרשים. מבחינת שכונות העיר השכונה ממוקמת מדרום לשכונת בית וגן; ממזרח לשכונת עין כרם ומעליה, וממזרח לקריית הדסה עין כרם, לקריית מנחם ולעיר גנים; ממערב לשכונות בית וגן, רמת דניה, רמת שרת ומנחת (מלחה) ומצפון לגן החיות התנ"כי ולעיר גנים א'.
עם הזמן השכונה התפתחה וגדלה, ועם בוא העלייה מברית המועצות לשעבר בשנות התשעים, החליפו עולים רבים את תושביה המקוריים של השכונה. כיום (2010), גרים בשכונה אנשים ממעמדות שונים בכפיפה אחת, ולא ניתן לסווג את השכונה למעמד חברתי מסוים. בשכונה ישנם פערים סוציו-אקונומיים גדולים בין הרחובות השונים.
השכונה נחשבת לשכונה חילונית ולשכונה של שומרי מסורת. תושבים דתיים ומשפרי דיור מהשכונות הדתיות הקרובות עוברים אליה ובשנת 2003 אף הוקמה לראשונה בשכונה ישיבה. רוב אברכי ישיבת הר המור מתגוררים בשכונה, ובאביב התשס"ח (2008) עברה לשם אף הישיבה עצמה, באופן זמני.
שינוי בהרכב האוכלוסייה בשכונה נוצר בעקבות מעבר של תושבים חרדים לשכונה, דבר שהביא אף למתיחת חוטי עירוב פרטי נוסף בשכונה. בצפונה של קריית היובל יש הגירה פנימית מתמדת של אוכלוסייה חרדית משכונת בית וגן היקרה לשכונת קריית היובל הזולה יותר. כיום (2012) מונה הקהילה החרדית בשכונה כ-700 משפחות. הקהילה מרוכזת בשלושה אזורים עיקריים; רחוב זנגוויל והסביבה, רחוב ברזיל והסביבה, רחוב שטרן והסביבה.
שכונה ישנם 15 בתי כנסת פעילים: 11 בתי כנסת של תושבי השכונה הוותיקים; הצבי, תוכו כברו, פרדס, גלעד, אוהל אבשלום, זיכרון קדושים, בית שלמה, כתמר יפרח, בית חב"ד, יד אבי ושבט אחים; וארבעה בתי כנסת חדשים בסגנון ישיבתי של הקהילה המתחרדת: בית הכנסת החדש, בית הכנסת (בשטרן), בית מדרש לתורה ולתפילה. בבית הכנסת (שנקנה מכספי התושבים החרדים) ישנו כולל אברכים הפעיל במשך רוב היום. כמו כן יש במקום מאגר תורני אוצר החכמה.


הנתונים מקורם בוויקיפדיה בכתובת : 
http://he.wikipedia.org/wiki/%D7%94%D7%93%D7%A8_%D7%92%D7%A0%D7%99%D7%9D-%D7%A2%D7%9E%D7%99%D7%A9%D7%91
הטקסט מוגש בכפוף ל-cc-by-sa

דירוגי גולשים לשכונה

חברתי

סביבתי

נגישות

מה אתה חושב על השכונה או הישוב?
לחץ לדירוג

פורום שכונת "קריית יובל"

עוד פרויקטים באזור

הרובע החדש באדם

השכונה החדשה באדם, אדם

דירות: 6 חד ויותר / דירת גן / מיני פנטהאוז / פנטהאוז / דופלקסים / דירת גג
החל מ- ₪2,890,000

אדרת ירושלים

גבעת המטוס, ירושלים

דירות: 3 חד / 4 חד / 5 חד / דירות גן 4 חד' / דירות גן 5 חד' / דירות גן 3 חדרים / פנטהאוז 5 חדרים / פנטהאוז 6 חדרים
החל מ- ₪3,599,000

מידטאון ירושלים

מידטאון, ירושלים

דירות: 2 חד / 4 חד / 5 חד / פנטהאוז 5 חדרים / פנטהאוז 6 חדרים / דופלקס 6 חדרים עם גינה

גבעת בראשית

גבעת המטוס, ירושלים

דירות: 3 חד / 4 חד / 5 חד / דירות גן 4 חד' / דירות גן 5 חד' / פנטהאוז 5 חדרים / פנטהאוז 6 חדרים / דופלקס 6 חדרים
החל מ- ₪3,050,000

תלפיות החדשה

תלפיות , ירושלים

דירות: 2 חד / 3 חד / 4 חד / 5 חד / דירת גן / מיני פנטהאוז / פנטהאוז

דונה בפסגה

פסגת זאב, ירושלים

דירות: 3 חד / 4 חד / 5 חד / דירות גן 4 חד' / פנטהאוז 6 חדרים
החל מ- ₪2,635,000

מורשת טל TAL

מורשת, מודיעין

דירות: 5 חד / קוטג' 6 חדרים / פנטהאוז 6 חדרים / דופלקס 6 חדרים
החל מ- ₪3,990,000

קרסו בוטניק

קרית מנחם, ירושלים

דירות: 3 חד / 4 חד / 5 חד / דירות גן 4 חד' / דירות גן 5 חד' / פנטהאוז 5 חדרים / פנטהאוז 6 חדרים
החל מ- ₪2,589,000

ארנונה רזידנס

ארנונה, ירושלים

דירות: 3 חד / 5 חד / פנטהאוז 5 חדרים / פנטהאוז 6 חדרים / מיני פנטהאוז 5 חדרים

נוף ציון השלב החדש

נוף ציון, ירושלים

דירות: 3 חד / 4 חד / 5 חד / דירות גן 5 חד' / פנטהאוז 5 חדרים

amim towers

ארנונה, ירושלים

דירות: 3 חד / 4 חד / 5 חד / פנטהאוז 6 חדרים
החל מ- ₪3,139,000

לוריא

מורדות ארנונה, ירושלים

דירות: 3 חד / 4 חד / 5 חד / דירות גן 4 חד' / דירות גן 3 חדרים / פנטהאוז 5 חדרים
החל מ- ₪2,850,000

VISION

תלפיות , ירושלים

דירות: 3 חד / 4 חד / 5 חד / פנטהאוז 5 חדרים / פנטהאוז 6 חדרים
החל מ- ₪2,940,000

נופים בדגן

גבעת הדגן, אפרת

דירות: 4 חד / 5 חד / דירת גן
החל מ- ₪4,090,000

הבית במקור חיים

מקור חיים, ירושלים

דירות: 2 חד / 3 חד / 4 חד / דירות גן 4 חד' / דירות פנטהאוז 2 ו-4 חדרים
החל מ- ₪6,900,000

KEDMA

הנביאים, ירושלים

דירות: 4 חד
החל מ- ₪7,500,000

הולילנד

הולילנד, ירושלים

דירות: 3 חד / 4 חד / 5 חד / פנטהאוז
החל מ- ₪3,659,000
1 2 >
הורד תכניות
-->